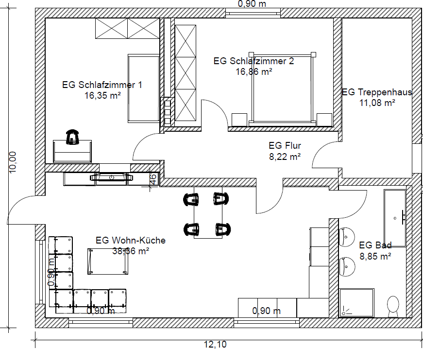
Erdgeschoss
- neue Wohnungseingangstür
- Durchgang zwischen Schlafzimmer 1 und Wohn-Küche wurde verschlossen
- Wohn-Küche bestand vorher aus zwei Räumen; Trockenbauwand entfernt; hintere Tür verschlossen
- Badezimmer bestand vorher aus kleinzelligen Toiletten; zwei Türen zum Hausflur verschlossen - stattdessen neue Tür zur Wohn-Küche erstellt
- Front zur Straße wird komplett erneuert (Schaufenster entfernt, Aufmauern auf Standard-Brüstungshöhe, neue Fenster, eine Terrassentür

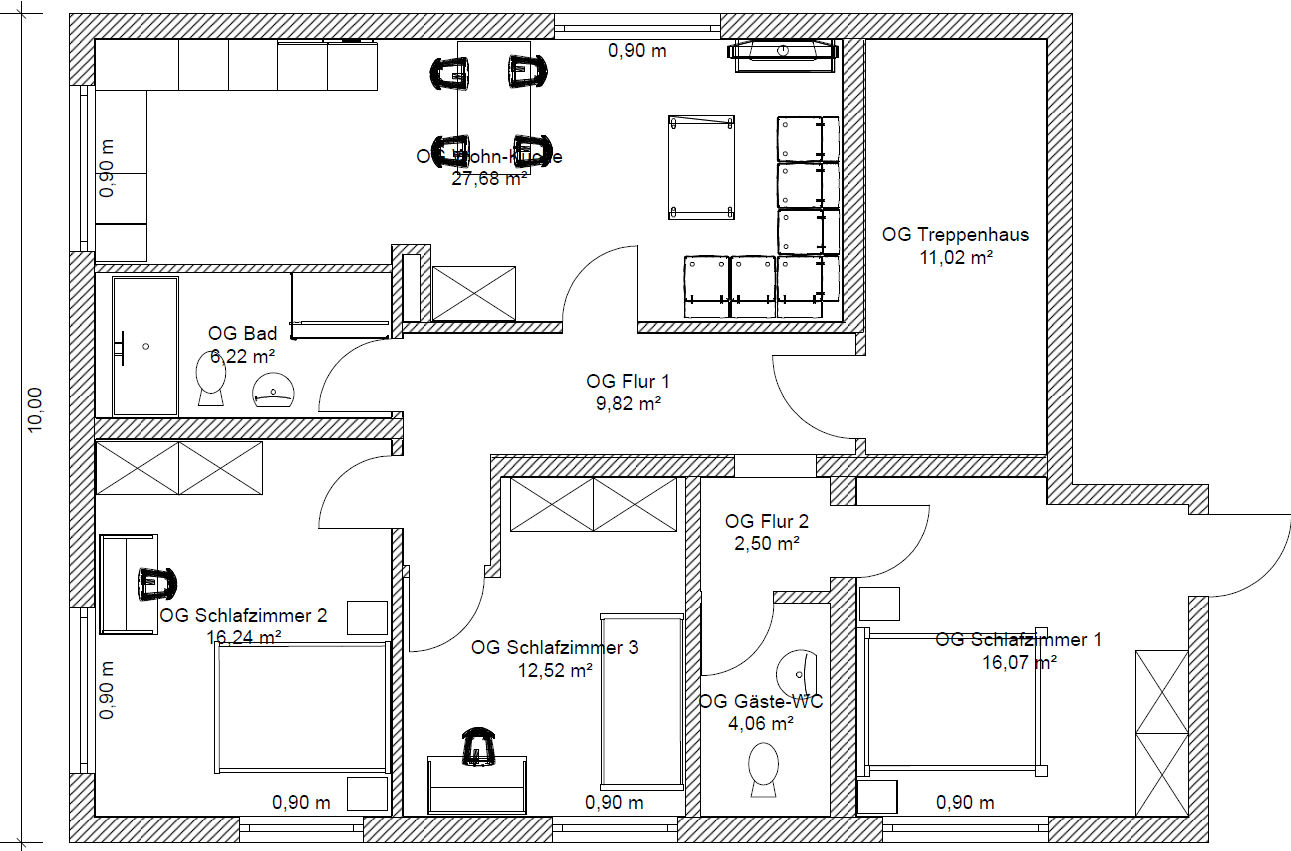
Obergeschoss
- neue Wohnungseingangstür
- Wohn-Küche bestand vorher aus zwei Räumen: Zwischenwand entfernt
- Badezimmer neu erstellt; Trennwand zur Küche wird neu mit Trockenbau erstellt
- ehemaliges Badezimmer wird nur noch Gäste-WC

-
Details
-
-
Zugriffe: 3399